Продаж 3-к квартири з ТЕРАСОЮ, вид на озеро!

  • $47 500

Опис

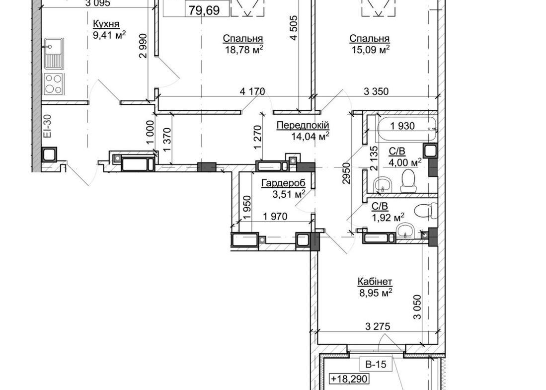
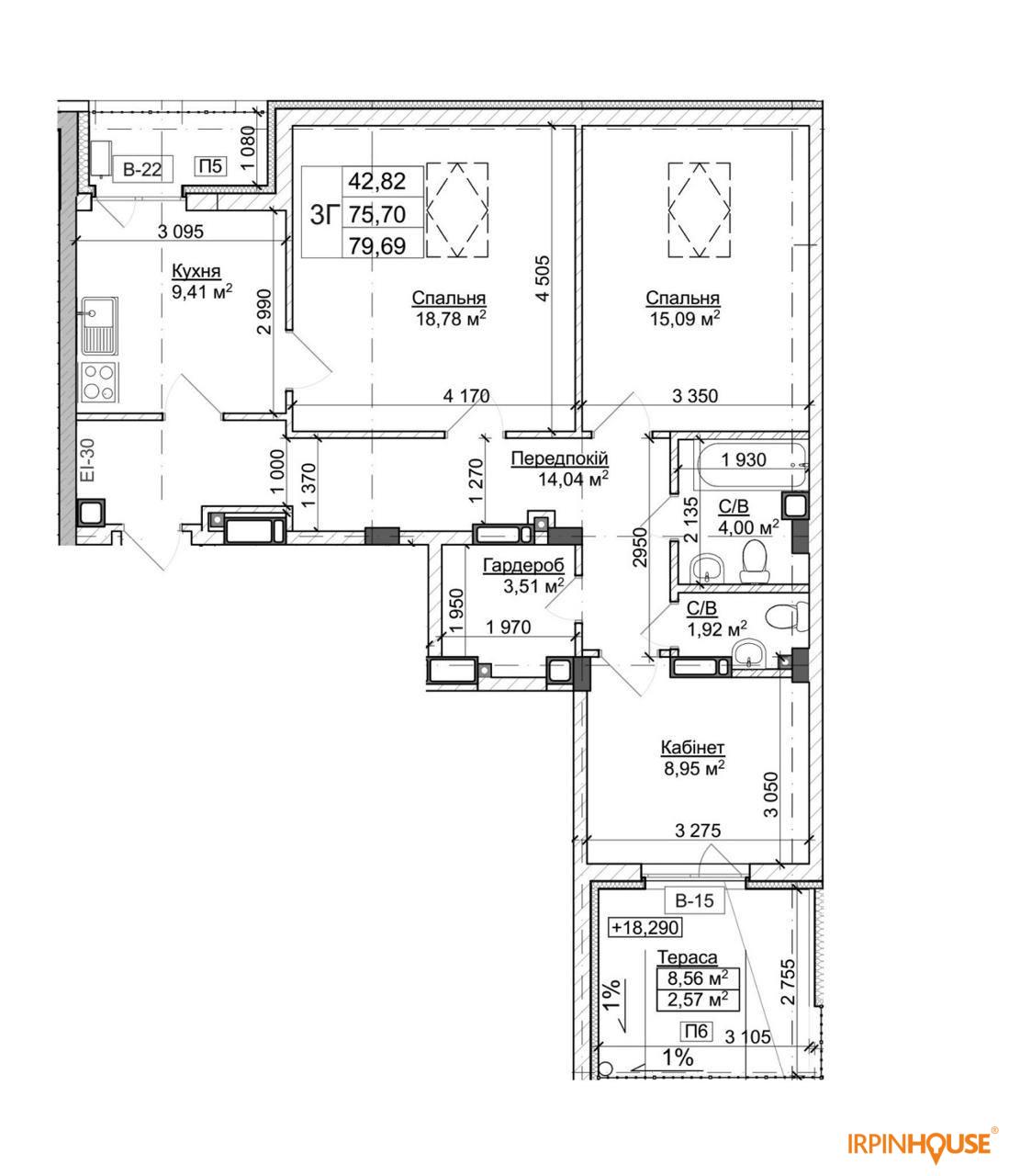
Продаж 3-кімнатної квартири, загальною площею 75.7 м2! Без комісії.
Сучасне планування, зданий будинок, прибудинкова територія під охороною.

До Вашої уваги, ТРИКІМНАТНА квартира – тераса, балкон, гардероб!
Комфортне та просторе планування.

– Наповнення : лазерна стяжка підлоги, встановлені радіатори в кожній кімнаті.
– Планування : кухня з виходом на балкон (за потреби можна перепланувати у простору вітальню), три житлові кімнати, роздільний санвузол, окрема гардеробна. В одній з кімнат вихід на терасу 8.5 м2 з неймовірним видом на озеро! Великий коридор.
Квартира внутрішня та тепла.
Дах будинку якісно утеплений мінватою.
Оселя розташована на 7\7 поверсі.

Житловий комплекс комфорт-класу Гостомель Резіденс – монолітно-каркасна технологія будівництва! Розташований у гарній та зручній локації для життя, поруч озеро, власні бесідки для відпочинку, простора прибудинкова територія закритого типу. В’їзд на територію через охорону та шлагбаум.
Комплекс знаходиться неподалік столиці, у мальовничому селищі Гостомель. Зручна транспортна розв’язка як до Києва так і по регіону.

Продаж без комісії для покупця. Для детальної інформації звертайтеся за телефоном, відповім на всі питання, а також домовимось про перегляд. З повагою, Кароліна

Деталі

Оновлено на 18 Березня, 2026 - 12:34 pm
  • Ідентифікатор власності: 29514
  • Ціна: $47 500
  • Розмір об'єкта нерухомості: 79.7 m²
  • Кімнати: 3
  • Рік побудови: 2024
  • Тип нерухомості: Квартира
  • Майновий стан: Продаж
  • Площа кухні: 9.4 m²
  • Поверховість будівлі:: 7
  • Поверх: 7

Контактна інформація

Усі оголошення автора
Кароліна Медкова-Мовчун +380958775159
  • Кароліна Медкова-Мовчун +380958775159
  • +380958775159

Запитайте про цю нерухомість

Compare listings

Порівняйте
Кароліна Медкова-Мовчун +380958775159
  • Кароліна Медкова-Мовчун +380958775159